We imported a 1988 Mercedes Benz 1120 AF into the USA for an expedition truck build. We have used a fiberglass/foam composite bow and other than the welding it is completely DIY. The build is currently not 100% finished. Things like the cab roof rack, entry grab bar, sand tracks mount, plumbing the second fuel tank and heating system install are left.
| Manufacturer and model | Mercedes Benz 1120 AF |
|---|---|
| Name | Vermonster |
| Country | USA |
| Website | http://www.vermonsterrv.com |
| Year of manufacture | 1988 but the camper box is all new |
| For sale? | no |
| Engine type | Mercedes OM366LA |
|---|---|
| Cubic capacity | ~6 Liters |
| Number of cylinders | 6 |
| Horsepower | 204 |
| 4x2, 4x4, 6x6, 8x8 | 4x4 |
|---|---|
| Wheel base | 12' |
| Number of seats | 2 |
| Tyre size | 385/65 R22.5 |
| Rim size | Single 22.5 |
| Type of tyre | General Tire Grabber OA |
| Tank capacity | 100 gallons |
| Diesel filter | yes |
| Permanent or manually selectable 4-wheel drive | Permanent |
| Diff locks | Rear and Center |
| Manufacturer of the cabin | Self Build using a Total Composites box |
|---|---|
| Inner dimensions (LxWxH) | 16.5' x 7.4' |
| Outer dimensions (LxWxH) | 17'x7.9' |
| Cabin material | Fiberglass/Foam composite |
| Kind and thickness of insulation | 2 |
| Number of beds | 1 |
| Windows | 4 |
| Subframe | Rail on self design and build |
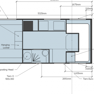
| Explanation of floor plan | |
|---|---|
| Optimized for a couple with seating forward and fixed queen bed aft. My wife and I have lived/sailed on a sailboat for the last 20 years. This truck is our new home as we recently completed a sailing trip around the world and decided we wanted to go around again, this time by land. |
| Material of furniture | Honeycomb cored fiberglass skinned walls, maple/walnut furniture |
|---|---|
| Other | |
| All walls and furniture were built in place and Sika 252'd to the walls. The major interior bulkheads are 30mm fiberglass/honeycomb composite. The floor plan was designed so that as close as possible to the center there were floor to ceiling walls to support the roof panel and side walls. The edges of these panels were routed out and Sika'd to poplar cleats on the floor/walls and ceiling. So no visible aluminum extrusions in the corners. The counters are all solid surface LG HiMacs. | |
| Cooking stove | Dometic CU434 Propane |
|---|---|
| Gas installation | 12.2 gallon fixed tank |
| Manufacturer and type of fridge / cooler | Indel Drink 130/Dometic CFX40 |
|---|
| Voltage in the chassis | 24v |
|---|---|
| Voltage in the cabin | 12v |
| Charging converter 24V-12V | Sterling DC to DC 24v to 12v |
| 110V / 230V in the cabin? | yes |
| Inverter | Renogy 2000w pure sign wave inverter charger |
| Capacity of batteries in the cabin | 400ah at 12v |
|---|---|
| Battery type | LifePO4 |
| Battery charger for cabin batteries | Renogy 2000w pure sign wave inverter charger |
| Battery management | Thornwave Labs |
| Other | |
| The batteries are 16 3.2v prismatic LifePO4 cells. They are connected in a 4P4S configuration. Total capacity it 400ah at 12v. The weight/space savings with these batteries is great compared to wet cell technology. | |
| Solar capacity | 1,000 watts |
|---|---|
| Solar controller | 2x Epever 4512 |
| Fuel cell | no |
| Power generator | Portable Honda 2kw petrol |
| Other | |
| We have 5 200watt solar panels split into 2 separate banks. | |
| Manufacturer and type of heating system | Webasto TL17 |
|---|---|
| Warm water processing | Webasto TL17 |
| Other | |
| In addition to the Webasto diesel furnace we have a Coleman Polar Cub rooftop air conditioner with an electric heating strip. | |
| Explanation of gas system | |
|---|---|
| We have a fixed mount 12.2 gallon propane tank mounted in the rear driver's side storage box. |
| Water filtration system | Dual cartidge with UV Sterilizer |
|---|---|
| Capacity of fresh water tank(s) | 100 gallons |
| Capacity of waste water tank(s) | 30 Gallon Gray Water |
| Other | |
| Both the fresh and gray tanks are custom welded 1/2" polypropylene. For the fresh water we have a Votronic tank level monitor. We have a Splendide clothes washer/dryer installed beneath the bed. | |
| Manufacturer and type of toilet | Airhead |
|---|---|
| Capacity of black water tank | Composting so no black tank |
| Other | |
| So far the composting head has been pretty nice, for us I think it was the best choice. | |
| Rear carrier | Self build motorcycle/spare tire rack |
|---|---|
| Roof rack | none |
| Storage boxes | self build 14 gauge steel |
| Outside cooking facilities | portable propane BBQ |
| Awning | ARB 2.5mx2.5m |
| Other | |
| The motorcycle/tire carrier is a lifting platform. The power is provided by a small reversing 12v winch wired to the house bank. The motorcycle is a Kawasaki 250cc Super Sherpa. | |